Commercial Property - Investment - MIXED RESIDENTIAL / RETAIL INVESTMENT

COMPRISES OF GROUND FLOOR RETAIL UNIT WITH 2 X FLATS ABOVE
VACANT RETAIL UNIT UPON COMPLETION
TENANTED FLATS
SUITABLE FOR OWNER OCCUPIERS OR INVESTORS
AVAILABLE TO PURCHASE WITH VACANT POSSESSION OF THE RETAIL UNIT AND SUBJECT TO THE TENANCY AGREEMENTS IN PLACE FOR THE RESIDENTIAL FLATS ABOVE AT AN ASKING PRICE OF £285,000 EXCLUSIVE.
Location: 

Northampton is England’s second largest town with a population of 222,500 and is the strategic location for many national organisations as their central hub for business. Northampton has excellent rail and road communications, with hourly train services to London and road links to the M1 at Junctions 15, 15a & 16 and additionally to the A14 in the North. Northampton currently has an Enterprise Zone status which aims to support both new and expanding businesses by offering incentives.

The new £330 million University of Northampton Waterside Campus has been constructed along the River Nene and provides state of the art education facilities to 15,000 students and is just a short walk from the town centre. The campus opened September 2018

The property has substantial passing traffic and is located within a densely populated surrounding area, as well as being within walking distance of the town centre, there is also on-street car parking on Wellingborough Road

Description: 

<p>This is a well maintained terraced red brick Victorian property offering vacant Ground Floor retail accommodation direct off the pavement and two tenanted one-bed flats above</p>
<p>There is a tidy yard/garden to the rear</p>

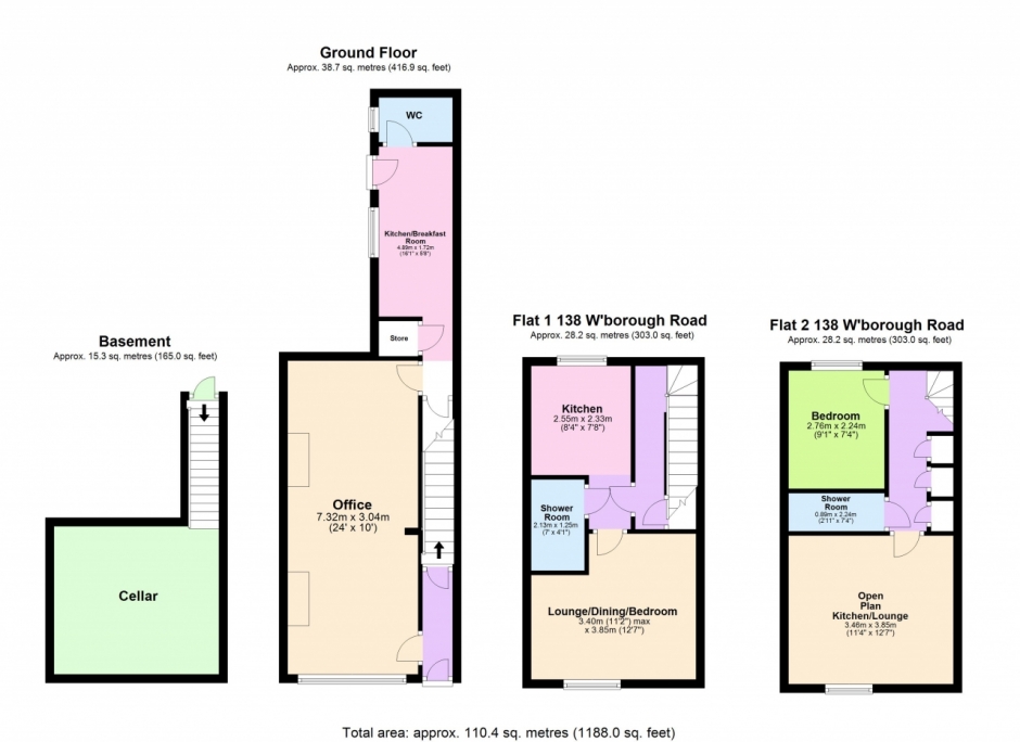
Accommodation: 
Ground floor 417 sq. ft
Basement  165 sq. ft
First floor flat 303 sq. ft
Second floor flat 303 sq. ft

 

Rates: 
Rateable Value: £5,000
Rates Payable 2022/23: £2,455

Qualifying small businesses may be eligible for 100% small business rates relief

(Excludes Small Business Rates Relief which may apply)
The Rates Payable figure is an estimate. It does not take into account any Transitional Arrangements. It is important that interested parties verify this information with the relevant Borough Council Rating Department.

Terms: 

Available to purchase with vacant possession of the retail unit and subject to the tenancy agreements in place for the residential flats above at an asking price of £285,000 exclusive

VAT: 

All figures quoted are exclusive of any VAT that the vendor may have a duty or choose to impose.

Viewing: 

Strictly by appointment through the Joint Sole Agents: HADLAND CHARTERED SURVEYORS TEL: 01604 639657 or chwon Commercial: 01604 604050

Sub Location: 
WELLINGBOROUGH ROAD